5,5K 
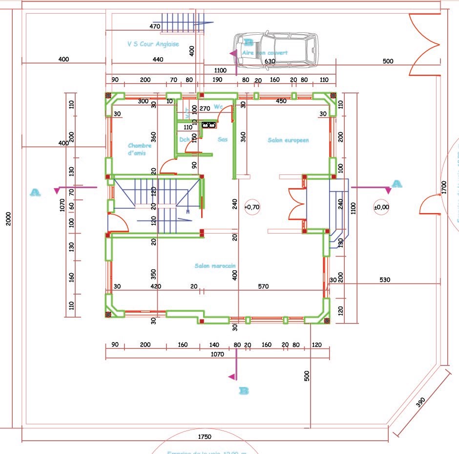
+ Le jeu de plan contient:
- Plan Fondation
- Plan RDC.
- Plan Sous-sol
- Plan Étage.
- Plan Terrasse
- Plan Toiture terrasse.
- plan de masse
- Toiture Terrasse.
- Plans des façades.
- Les Coupes.
+ Programme du plan:
Le plan est constitué d’un sous-sol + RDC + Étage.
- 4 Chambre avec placards.
- 2 Salon.
- 3 SDB.
- 1 Séjour
- 1 WC
- 1 Cuisine.
- 1 Salle a manger.
- 1 Bureau.
- 1 Garage.
- 1 Terrasse.
 Télécharger le plan villa








