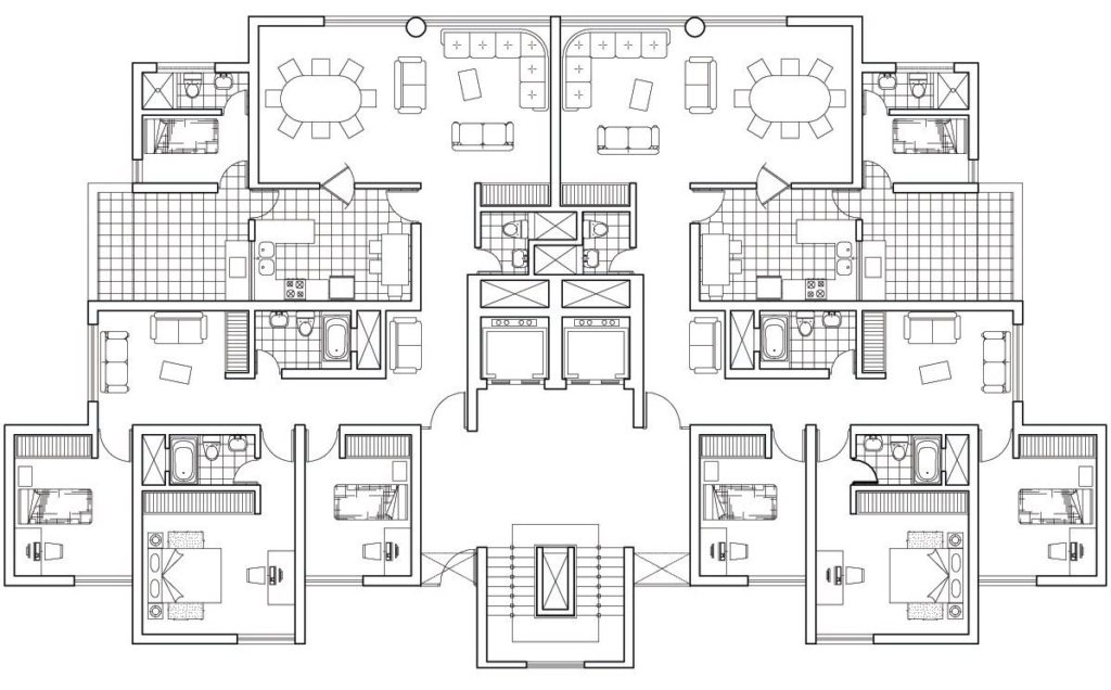
3,9K + Programme du plan: Le plan est constitué de 2 appartement avec ascenseur. chaque appartement contient:4 Chambre avec placards.1 Salon.1 Sejour2 SDB.1 W.C1 Cuisine.1 Salle a manger.1 Balcon Télécharger ce plan gratuitement au format DWG AUTOCADPlan ARCHI 2 Commentaires 0 FacebookTwitterPinterestWhatsappTelegram AKABLI MoussaFormateur dans le BTP, DAO, Design graphique Concepteur de plan ARCHI & Bloggeur article précédent Plan ARCHI N° 038 – Villa article suivant Plan ARCHI: Plan Café – Magasin – 007 Articles connexes Terminologie Coupe Architecturale (PDF+DWG) Éléments constitutifs des planchers Apprendre à dessiner en 3D avec AutoCAD Plans de maison de moins de 50 mètres... Résistance des matériaux de base Plan de maison Rez-de-chaussée +2 Conception salle de bain bibliothèque de fichier DWG – Autocad Plan DWG Mosquée + Détails (Complet) Plan R+5 Complet en DWG2 Commentaires Adandedjan pascal juillet 23, 2020 - 11h45Je suis vraiment intéressé a votre service Répondre Alla judicael septembre 29, 2020 - 8h43je trail deja dent le batimen, j’aimere aprofondir encor pour plus de conessance Répondre Laissez un commentaire Annuler la réponseEnregistrez mon nom, mon courrier électronique et mon site Web dans ce navigateur pour un prochain commentaire.* En utilisant ce formulaire, vous acceptez le stockage et le traitement de vos données par ce site. ΔCe site utilise Akismet pour réduire les indésirables. En savoir plus sur la façon dont les données de vos commentaires sont traitées.
2 Commentaires
Je suis vraiment intéressé a votre service
je trail deja dent le batimen, j’aimere aprofondir encor pour plus de conessance