13,1K 
Les images ci-dessous montre comment dessiner les différents plans (façades, coupes…).
Ce petit livre apprend: 

Les images ci-dessous montre comment dessiner les différents plans (façades, coupes…).
Ce petit livre apprend:
- La lecture de plans
- le dessin des plans
Apprenez facilement la lecture des plans avec ces perspectives schématisé.
apprenez aussi comment le dessin architecturale (dessin des plans).
- Le dessin des plans vues en plans.
- Le dessin des plans façades.
- Le dessin des plans coupes.
- le dessin des plans toiture terrasse.
Table of Contents
Voici comment dessiner le plan façade arrière expliqué en schéma simple.
Pour dessiner le plan façade on projette la façade comme expliqué dans le dessin.
Une autre méthode très simple de dessin des façades est la projection:
- On commence par la projection des limites du mur et la hauteur de l’édifice à partir du sol.
- On projette les baies (ouverture porte et fenêtres).

On supprime les lignes de projection est on obtient notre façade arrière.
Voici comment dessiner le plan façade avant, expliqué en schéma simple.
Le dessin peut se faire on imaginant la façade et ceux de la manière suivante
- on dessin un grand rectangle ce limitant la hauteur et le début depuis le sol ainsi que les limites gauches et droite.
- on insère les baies (ouverture, portes et fenêtres) et ceux on respectant les cotes sur le plan.
On peut aussi dessiner la façade par voie de projection comme expliqué sur le dessin.
- On commence par le dessin des limites de la façades.
- on projette les portes et fenêtres via le plan RDC.

On suprime les lignes de projection et on obtient notre plan façade.
Comment dessiner des plans de coupes?
On dessine des plans de coupes théorique sur le plan, qui ressembleront au dessin en perspective
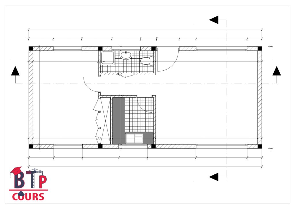
La coupe suivante montre comment est obtenu le plan RDC.
Remarque:
- Les flèches orienté vers le bas, indique la partie a dessiner en projection sur le plan (dans ce cas la partie basse).
- Si les flèches étaient orienté vers le haut le plan seraient un plans détail plafond ou faux plafond, appelé aussi plan repérage électricité.
Voila donc on coupé le bâtiment on deux parties
On a enlevé la partie haut du bâtiment et on a gardé la partie bas du bâtiment vue que les flèches sont orienté vers le bas ce qui indique la partie désiré.
Le plan RDC ainsi obtenu ressemble au dessin ci-dessus.
pour dessiner la coupe transversale suivez les étapes suivantes.
On dessine notre coupe théorique et on indique la partie souhaitée par des flèches.
On peut aussi dessiner la coupe via la projection (voir le dessin du dessus)
La coupe obtenu ressemblera au dessin ci-dessous.
On dessine notre coupe théorique et on indique la partie souhaitée par des flèches.
On peut aussi dessiner la coupe via la projection (voir le dessin du dessus).
La coupe obtenu ressemblera au dessin ci-dessous.
Pour dessiner le plan fondation on copie les poteaux du plan RDC et on rajoute le chaînage et les longrines ainsi que les regards.
Pour le dessin du plan toiture terrasse on dessine la terrasse et on rajoute des flèches indiquant la pente vers la gargouille
Télécharger le livre représentation des plans























1 Commentaire
MERCI INFINIMENT